Skip to main content

Commercial & Logistics

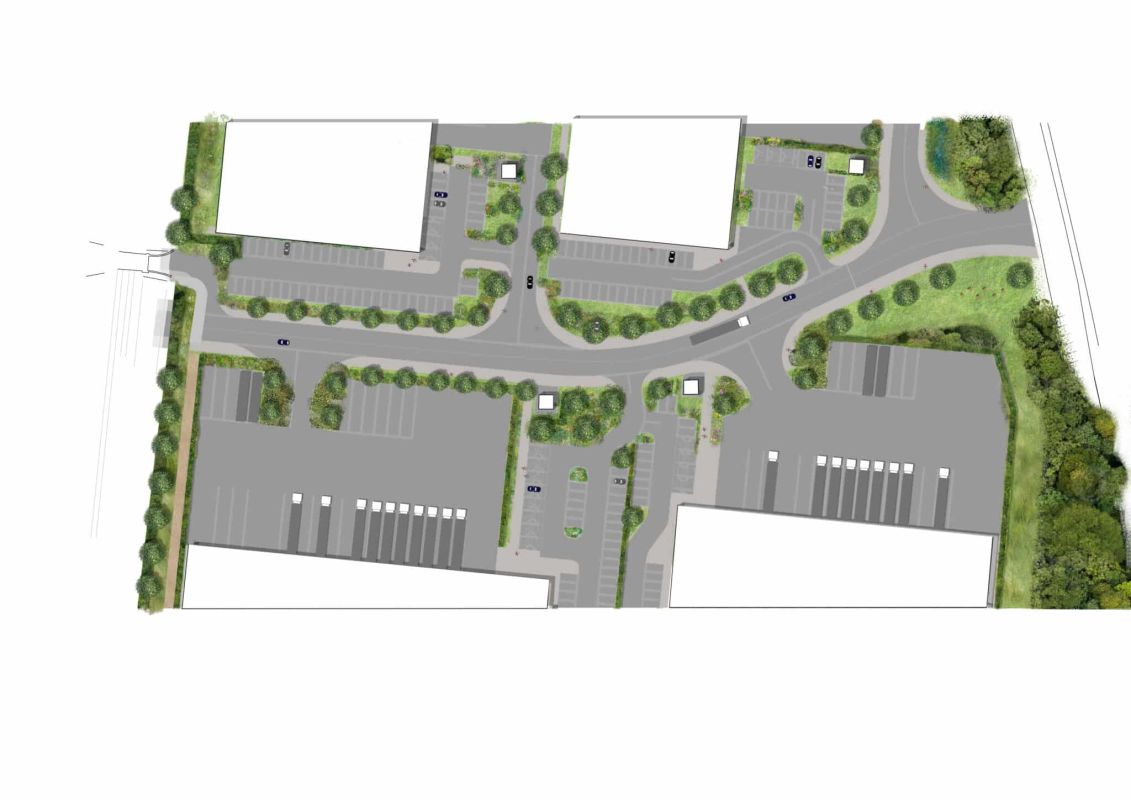
Indurent Park Stafford

Project Details

  • Client
    Indurent
  • Location
    Dunston, near Stafford, Staffordshire
  • Year
    2022 – present
  • Services
    Landscape Architecture

Overview

Define Planning and Design provided landscape planning and design leadership for Indurent’s proposed industrial and logistics development at Dunston, near Stafford. The site is strategically located adjacent to Junction 13 of the M6 motorway and benefits from outline planning permission for up to 655,000 sq. ft. of high-quality industrial, storage and distribution floorspace.

The consented scheme also includes supporting highway infrastructure, comprehensive landscaping and integrated green infrastructure improvements, forming a landscape-led response to a sensitive rural setting.
Our role
We played a lead role on this speculative project, providing landscape, green infrastructure and design coordination expertise throughout the planning process. Our scope included landscape and visual impact assessment, preparation of the application parameter drawings, and the development of the site-wide landscape and green infrastructure strategies. Define also brought together and authored the project’s Design & Access Statement, ensuring a clear and cohesive narrative underpinned the submission.

Working closely with the project’s architects, planners, engineers, ecologists and heritage consultants, we focused on the protection of valued site features and the careful integration of proposed buildings into their landscape context. Augmented reality software was used to iteratively test building heights, earthworks and layout options, helping to ensure the proposals respected the setting of the Cannock Chase National Landscape and sensitive views to and from nearby listed heritage assets.
    The outcome
    The approved development is expected to deliver a range of economic, environmental and community benefits, including the creation of approximately 880 permanent jobs, with a further 140 roles generated during the construction phase. The scheme will also deliver an anticipated biodiversity net gain of around 28%, alongside new areas of open space and enhanced pedestrian and cycle connections for the local community.

    Related projects

    This consent follows Indurent’s wider industrial and logistics portfolio, including a major development in Basildon, Essex, where Define also provided landscape planning and green infrastructure expertise to secure planning permission.

    Project Team

    Peter Dunlop

    Megan Lloyd

    Helen Young

    Let’s define your next project
    Curious about how we could work together? Our team of planners, designers and landscape architects are ready to help bring your vision to life.